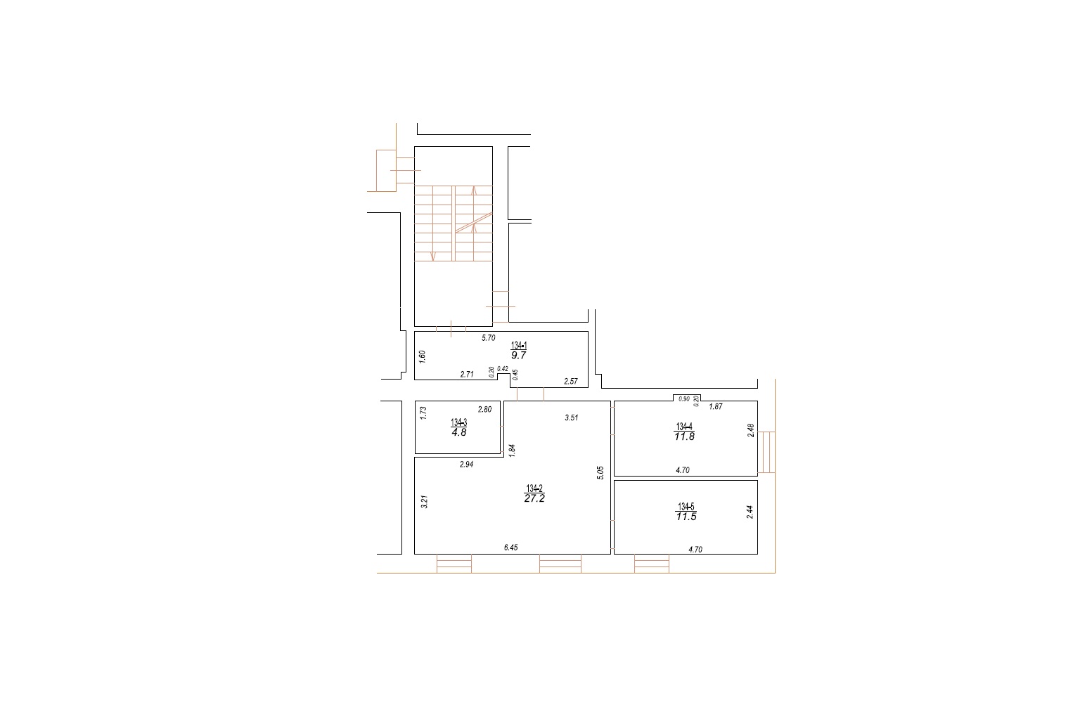
Eksporta10